| BROCHURE: DE | NL | EN | FR | IT
TREPEDIA
TREPEDIA
GRATIS
DEMO
Licensed & Insured Approved

Plattegrond

Flexibele Weergaveopties voor Elke Behoefte

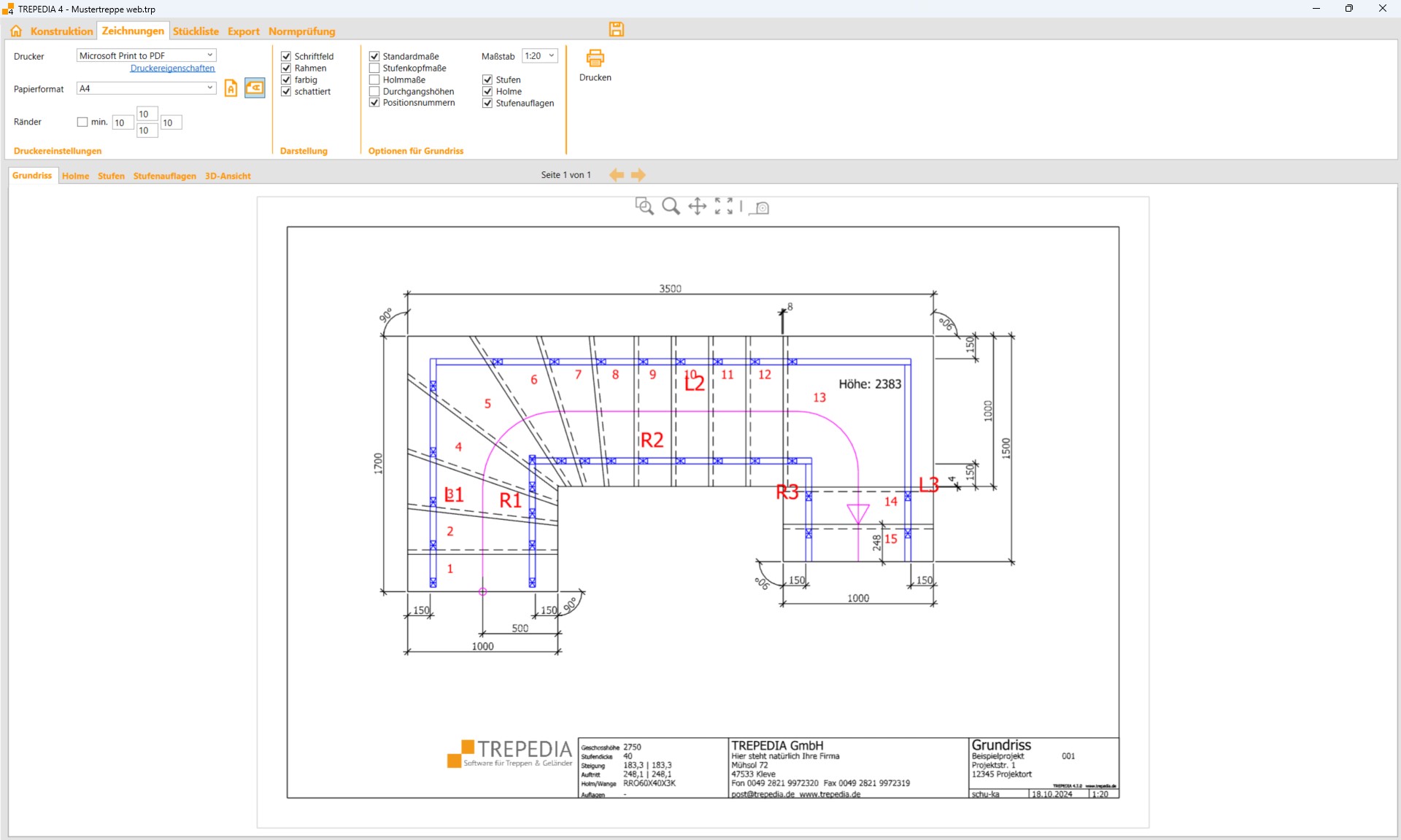
De plattegrond biedt verschillende weergaveopties - van eenvoudige overzichten tot gedetailleerd bematen plannen.

Bekijk hoe snel het werkt

Veelzijdige Weergave

De plattegrond laat veel opties toe. Deze kan bijvoorbeeld alternatief zonder sporen en daarvoor met trapkopmaten worden weergegeven. Of zonder treden en alleen met bematen sporen, zoals veel metaalbewerkers graag hebben.

TREPEDIA Grundriss Beispiel

Voorbeeld van een gedetailleerde plattegrond met alle bemating

Standaard Plattegrond

  • • Treden en holmen
  • • Volledige bemating
  • • Leuningaanzicht
  • • Wandafstanden

Zonder Holmen

  • • Alleen treden zichtbaar
  • • Tredekopmaten
  • • Overzichtelijke weergave
  • • Ideaal voor planners

Alleen Holmen

  • • Zonder treden
  • • Bematen holmen
  • • Voor metaalbouwers
  • • Constructiefocus

Toepassingsgebieden

Voor Architecten & Planners

  • Overzichtelijke ruimteplanning zonder constructiedetails
  • Tredekopmaten voor nauwkeurige ruimtebehoefteberekening
  • Integratie in bouwtekeningen

Voor Metaalbouwers

  • Focus op holmconstructie en -bemating
  • Fabricagegerichte weergave
  • Direct gebruik voor productie